7 SATINWOOD - $459,900.00

7 SATINWOOD,Leamington - $459,900 - Directions

| | MLS #: | 26001418 | | Price: | $459,900.00 | | Online: | https://www.sar ahdupuis.com/pr operty-29266585 |
|  |
Directions
Property Specs
Price$459,900.00
CityLeamington, ON
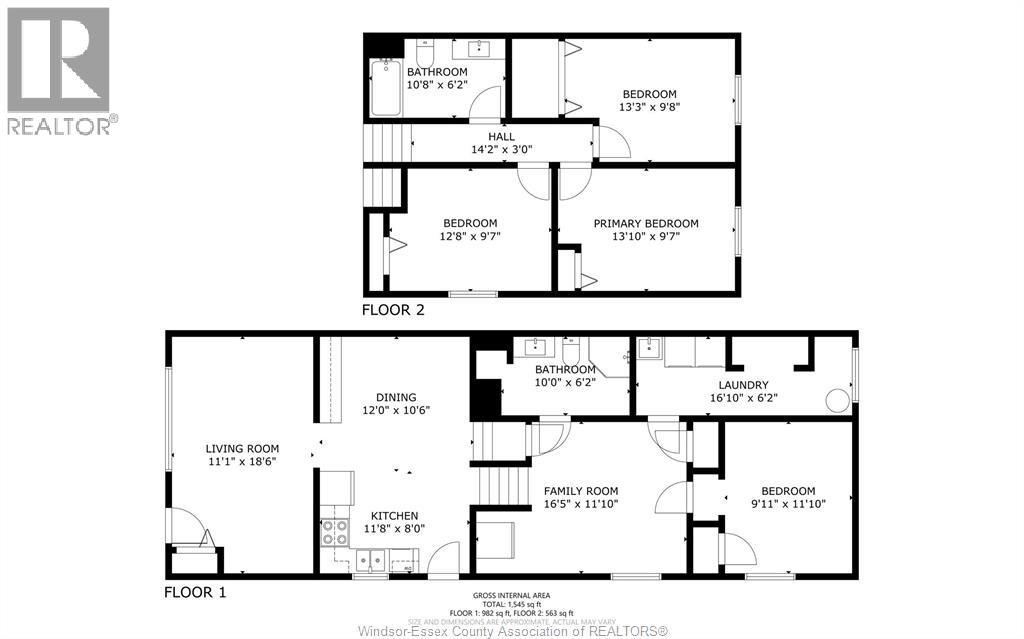
Bed / Bath4 / 2 Full
Address7 SATINWOOD
Listing ID26001418
Style3 Level
ConstructionAluminum/Vinyl, Brick, Concrete/Stucco
FlooringCushion/Lino/Vinyl
Land Size32 X 113 FT / 0.8 AC
StatusFor sale
Extended Features:
Features Finished Driveway, Front Driveway, Single DrivewayOwnership FreeholdAppliances Dishwasher, Dryer, Stove, Two Refrigerators, WasherConstruction Style Split Level BacksplitCooling Central air conditioningFoundation BlockHeating Forced air, FurnaceHeating Fuel Natural gas
Details:
Welcome to 7 Satinwood, a traditional semi-detached Back Split 3-Level in the heart of a quiet Leamington neighbourhood. This well kept home offers a smart layout with 4 bedrooms and 2 full bathrooms for busy families or guests. Enjoy the fresh look and easy maintenance of newer vinyl flooring throughout most of the home, along with comfortable, functional living spaces on all levels. Step outside to backyard, perfect for summer BBQs, kids, pets, or simply relaxing. Conveniently located close to shopping, groceries, restaurants, downtown Leamington, and all everyday amenities. Zoned R2, offering added flexibility and potential income opportunities (buyer to verify permitted uses), including the possibility of a short-term rental/Airbnb. Don't miss your chance to make it yours! (id:4555)
topGallery
Displaying 1 through 33 of 33 of 33 in gallery.
top LISTING OFFICE:
RE/MAX Preferred Realty Windsor, Devin Garganta