5227 HABIB AVENUE - $749,999.00

5227 HABIB AVENUE,Tecumseh - $749,999 - Directions

| | MLS #: | 26002181 | | Price: | $749,999.00 | | Online: | https://www.sar ahdupuis.com/pr operty-29307453 |
|  |
Directions
Property Specs
Price$749,999.00
CityTecumseh, ON
Bed / Bath3 / 3 Full, 1 Half
Address5227 HABIB AVENUE
Listing ID26002181
StyleRaised Ranch w/ Bonus Room
ConstructionAluminum/Vinyl, Brick, Stone
FlooringCeramic/Porcelain, Hardwood
ParkingGarage, Inside Entry
Land Size34.5 X 131 FT
TypeHouse
StatusFor sale
Extended Features:
Features Front Driveway, Gravel DrivewayOwnership FreeholdCooling Central air conditioningFoundation ConcreteHeating Furnace, Heat Recovery Ventilation (HRV)Heating Fuel Natural gas
Details:
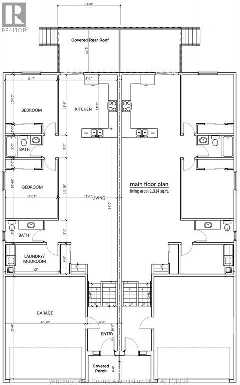
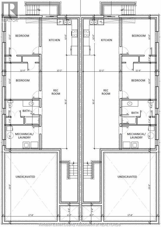
WELCOME TO MAIDSTONE IN THE TOWN OF TECUMSEH, FEATURING THIS 1760 SQFT SEMI DETATCHED RAISED RANCH SEMI BONUS. FREATURING MASTER BEDROOM OVER TOP THE GARAGE WITH ENSUITE AND WALK IN CLOSET. OPEN CONCEPT MAIN FLOOR BOASTS 2 BATHROOMS, INCLUDING MAIN AND POWDER ROOM FOR GUESTS. LARGE KITCHEN WITH BREAKFEST BAR AND EATING AREA OPENS TO FORMAL DINNING ROOM AND LIVIG ROOM SPACE. LARGE MAIN FLOOR LAUNDRY WITH LOTS OF SPLACE FOR STORAGE.DOUBLE CAR INSULATED/FINISHED GARAGE (PRIMED) WITH INSIDE ENTRY. GRADE ENTRANCE IN THE BACK WITH ROUGHED IN KITCHEN AND BATH IN BASEMENT FOR FUTURE FINISHINGS. CLOSE TO 401, HIGHWAY 3, Costco, WALKER ROAD POWER CENTER AND NEW MEGA HOSPITAL. QUALITY FINISHES THROUGHOUT. THE HOME INCLUDING HARDWOOD FLOORS, PORCELIN TILE AND QUARTZ COUNTER TOPS. CONTACT REALTOR® FOR MORE INFO.Taxes included in the asking price. (id:4555)
topGallery
Displaying 1 through 6 of 6 of 6 in gallery.
top LISTING OFFICE:
RE/MAX Preferred Realty Windsor, Shadi Habib